- Home
- Our Portfolio
Our Porfolio
If you can dream it, we can design it
Spaces designed
for everyday living.
From planning drawings to completed homes, here’s a selection of projects where we’ve helped clients unlock more space, light and comfort.
Our Services
Planning applications, extensions, loft conversions and interiors — a quick look at how we help clients transform their homes.
Planning Approval
Rear Extension – Harrow
Full planning package including existing/proposed elevations and site layout for a family home.
House Extension
Double Storey Side Extension
Contemporary brick extension designed to increase living space while respecting the original façade.
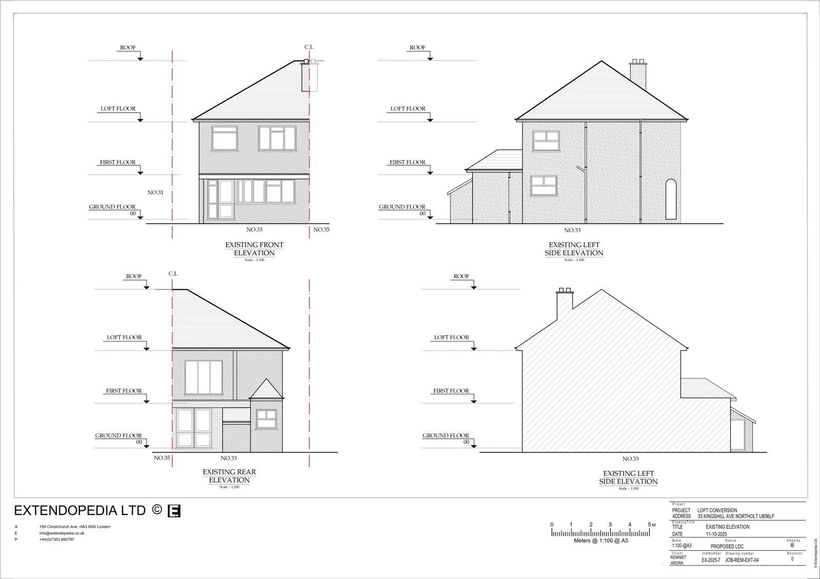
Loft Conversion
Dormer Loft – North London
Loft conversion creating a new master suite with maximised headroom and natural light.
Interior Design
Open-Plan Kitchen & Living
Warm textures, feature lighting and clean lines for relaxed everyday living.
Mixed-Use Scheme
Apartment Block – London
Planning and technical drawings for a multi-unit residential scheme with active ground floor frontage.
Planning Approval
Rear Extension – Harrow
Full planning package, ready for builder pricing and construction.
House Extension
Double Storey Side Extension
Bright open-plan kitchen and dining space created through lateral extension.
Why homeowners choose Extendopedia.
One point of contact
From first sketch to final delivery – a single team guiding the whole project.
Transparent timelines & budget control
Clear programmes and honest cost advice at every stage.
Tailored to your lifestyle & property
Designs shaped around how you live, not just how a plan looks on paper.
Expert residential team
Specialists with 12+ years focused on extensions, lofts and home refurbishments.
Why homeowners trust Extendopedia:
- Bespoke architectural design
- Planning & building regulation approvals
- Structural engineering coordination
- Contractor selection & site supervision
- Full build management to completion
Consultation & Concept
We start by listening — to your ambitions, budget and timescale.
We begin with an informal consultation to explore how you currently use the space, what isn’t working, and what a successful project would feel like for you.
- Review of your property, photos or existing plans.
- Discussion around style, priorities and budget.
- Initial planning and feasibility guidance.
Client briefing session
A relaxed conversation to define the brief and agree the next steps.
Design Development
Turning ideas into well-resolved layouts that feel effortless to live in.
We explore different configurations to maximise light, flow and storage while staying aligned with local planning policies.
- Measured survey or review of existing drawings.
- Alternative layout options with pros and cons.
- Refinement of a preferred scheme ready for planning.
Concept & layout studies
We iterate on drawings until the layout feels right for everyday use.
Planning Approval
A thorough planning package submitted and managed on your behalf.
We act as your agent with the local authority, preparing all drawings and documentation needed for a smooth planning process.
- Full set of planning drawings and annotated notes.
- Submission via the planning portal in your name.
- Liaison with case officers and responses to queries.
Planning submission
Clear, compliant information that gives your application the best chance of success.
Technical Drawings
Detailed information that contractors and building control can rely on.
Following approval we prepare the technical drawings that translate your design into something buildable on site.
- Dimensioned plans, sections and key construction details.
- Information suitable for building control and tender pricing.
- Coordination with structural engineer where required.
Construction drawing set
A practical, contractor-friendly package that keeps questions to a minimum.
Project Support
Design involvement during the build to keep everything on track.
As works progress we remain available to answer queries, refine details and help ensure what’s built on site matches the drawings.
- Clarification of drawings and details for your builder.
- Design tweaks where site conditions require a change.
- Support through to completion and handover.
On-site design reviews
We stay by your side as a design partner until the project is finished.
Selected Architectural Sheets
Client Testimonials
What our clients say about working with Extendopedia.
“Extendopedia made our home extension journey smooth and stress-free.”
“Our loft extension looks incredible! Highly recommend their team.”
“They handled everything from drawings to approvals, professionally.”